広さを味わう、素材感あふれる上質空間
リフォーム事例の詳細
住宅の種類 | マンション・アパート |
---|---|
建物構造 | - |
築年数 | 54年 |
施工地 | ・ |
施工面積 | 107.0㎡ |
施工日数 | 150日間 |
施工完了日 | 2025年07月30日 |
リフォーム箇所 | 家全体・リノベーション 、 キッチン 、 お風呂・浴室 、 トイレ 、 洗面所 、 洋室 、 廊下 |
リフォーム費用概算 | 1000万円以上 |
家族構成 | DINKS |
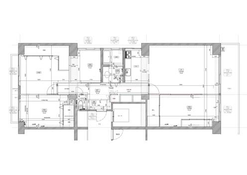
間取り | Before:4LDK → After:4LDK |
リフォーム会社からのコメント
施工会社 : 株式会社a-tech
・LDKと洋室は引き戸で仕切り、戸を開けると視線が抜ける開放的なプラン。
・引き戸でゾーニング可能な空間が、フレキシブルかつ機能的。
・大きな窓からの自然光と、表情豊かな無垢フローリングが調和。
・白壁と木のコントラストが、シンプルながらも洗練された素材選び。
・各部屋に設けたアクセントカラーで個性をプラスし、暮らしのワンポイントに。
このリフォーム事例の詳細
間取り





家全体・リノベーション
リフォーム費用 | 1000万円以上 |
---|---|
施工日数 | - |
施工面積 | - |
採用メーカー・シリーズ | - |
キッチン
リフォーム費用 | 1000万円以上 |
---|---|
施工日数 | - |
施工面積 | - |
採用メーカー・シリーズ | - |
お風呂・浴室
リフォーム費用 | 1000万円以上 |
---|---|
施工日数 | - |
施工面積 | - |
採用メーカー・シリーズ | - |
トイレ
リフォーム費用 | 1000万円以上 |
---|---|
施工日数 | - |
施工面積 | - |
採用メーカー・シリーズ | - |
洗面所
リフォーム費用 | 1000万円以上 |
---|---|
施工日数 | - |
施工面積 | - |
採用メーカー・シリーズ | - |
洋室
リフォーム費用 | 1000万円以上 |
---|---|
施工日数 | - |
施工面積 | - |
採用メーカー・シリーズ | - |
廊下
リフォーム費用 | 1000万円以上 |
---|---|
施工日数 | - |
施工面積 | - |
採用メーカー・シリーズ | - |

施工したリフォーム会社の詳細
株式会社a-tech

東京都目黒区上目黒1-1-5 第二育良ビル3F
得意なリフォーム
- デザインリノベーション
- フルリノベーション
- 間取り変更リフォーム
おすすめポイント
- 1
専門スタッフによりチーム体制
- 2
自社職人と協力パートナー業者による自社施工
- 3
中目黒にショールームあり
マンションリノベーションをメインにリノベーションの設計・施工を行なっているa-techと申します。弊社は2020年に創業し、一都三県を中心に法人向け・個人向けのリノベーション事業を展開してきました。現在は中目黒にショールームを構え、年間約200件近くの工事を担当してります。自社の強みとしては、自社で職人を採用し、設計から施工まで自社で一貫して工事を行うことで、スムーズなプロセスと高い品質を実現しています。顧客視点でのリノベーションをテーマに、これからもよりスムーズでわかりやすいサービスを展開していきます。