築古マンションのフルリフォーム
リフォーム事例の詳細
お客様からの要望
投資用物件なのでなるべく安く、使いやすい間取りに。
リフォーム会社からのコメント
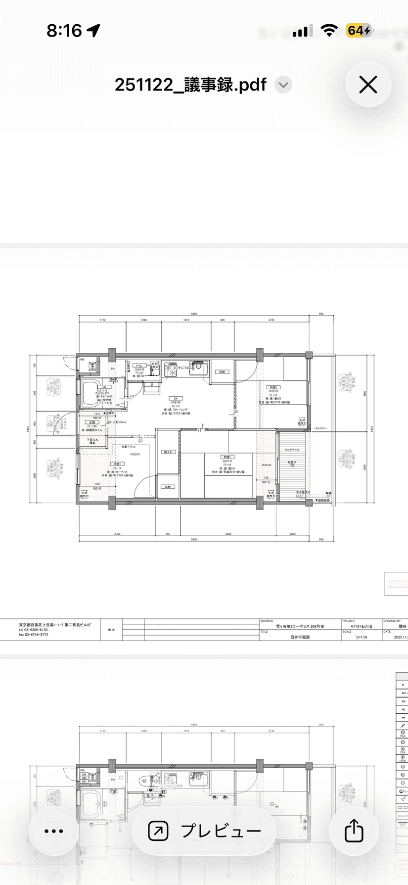
対面キッチンにすることで見栄えが良く、また、イメージは無印良品で木の温かみがある使い勝手のよい部屋。また対面キッチンとしてカップボードも置きやすい間取りに。DINKSか一人暮らしをイメージして思い切って部屋数を減らして、広々とした部屋にする。
このリフォーム事例の詳細
間取り
家全体・リノベーション
テイスト:ナチュラル
色調:白系
| リフォーム費用 | 約750万円 |
|---|---|
| 施工日数 | 90日間 |
| 施工面積 | 48.0㎡ |
| 採用メーカー・シリーズ | クリナップ |
キッチン
テイスト:ナチュラル
色調:白系
| リフォーム費用 | 約750万円 |
|---|---|
| 施工日数 | 90日間 |
| 施工面積 | 48.0㎡ |
| 採用メーカー・シリーズ | クリナップ / ラクエラ |
お風呂・浴室
テイスト:ナチュラル
色調:白系
| リフォーム費用 | 約750万円 |
|---|---|
| 施工日数 | 90日間 |
| 施工面積 | 48.0㎡ |
| 採用メーカー・シリーズ | - |
トイレ
テイスト:ナチュラル
色調:白系
| リフォーム費用 | 100〜150万円 |
|---|---|
| 施工日数 | 10日間 |
| 施工面積 | - |
| 採用メーカー・シリーズ | TOTO / その他(不明) |
洗面所
テイスト:ナチュラル
色調:白系
| リフォーム費用 | 50〜100万円 |
|---|---|
| 施工日数 | 10日間 |
| 施工面積 | 10.0㎡ |
| 採用メーカー・シリーズ | - |
リビング
テイスト:ナチュラル
色調:白系
| リフォーム費用 | 150〜200万円 |
|---|---|
| 施工日数 | 30日間 |
| 施工面積 | 30.0㎡ |
| 採用メーカー・シリーズ | - |
ダイニング
テイスト:ナチュラル
色調:白系
| リフォーム費用 | 50〜100万円 |
|---|---|
| 施工日数 | 30日間 |
| 施工面積 | 30.0㎡ |
| 採用メーカー・シリーズ | - |
廊下
テイスト:ナチュラル
色調:白系
| リフォーム費用 | 20〜50万円 |
|---|---|
| 施工日数 | 10日間 |
| 施工面積 | 10.0㎡ |
| 採用メーカー・シリーズ | - |
施工したリフォーム会社の詳細
株式会社a-tech
東京都目黒区上目黒1-1-5 第二育良ビル3F
施工事例 14件
得意なリフォーム
- デザインリノベーション
- フルリノベーション
- 間取り変更リフォーム
おすすめポイント
- 1
専門スタッフによりチーム体制
- 2
自社職人と協力パートナー業者による自社施工
- 3
中目黒にショールームあり
マンションリノベーションをメインにリノベーションの設計・施工を行なっているa-techと申します。弊社は2020年に創業し、一都三県を中心に法人向け・個人向けのリノベーション事業を展開してきました。現在は中目黒にショールームを構え、年間約200件近くの工事を担当してります。自社の強みとしては、自社で職人を採用し、設計から施工まで自社で一貫して工事を行うことで、スムーズなプロセスと高い品質を実現しています。顧客視点でのリノベーションをテーマに、これからもよりスムーズでわかりやすいサービスを展開していきます。

