広々LDKで成長に寄り添うリノベ住宅
リフォーム事例の詳細
リフォーム会社からのコメント
施工会社 : LIXILリフォームショップ大創住建
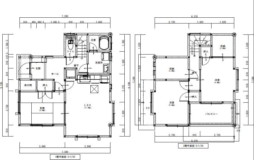
和室とLDKを一体化し、18帖の広々としたリビングダイニングを新設しました。2階は2部屋の壁を撤去し大きな1部屋に変更。ドアを2か所設けているため、将来的に仕切って2部屋として使用可能です。主寝室にはオープン型のウォークインクローゼットを設置し、収納力も充実。内窓による断熱対策を行った「安心R住宅」として、家族構成やライフスタイルの変化に柔軟に対応できるお住まいです。
このリフォーム事例の詳細
間取り
キッチン
| リフォーム費用 | 100〜150万円 |
|---|---|
| 施工日数 | - |
| 施工面積 | - |
| 採用メーカー・シリーズ | リクシル その他 |
お風呂・浴室
| リフォーム費用 | 100〜150万円 |
|---|---|
| 施工日数 | - |
| 施工面積 | - |
| 採用メーカー・シリーズ | リクシル その他 |
トイレ
| リフォーム費用 | 20〜50万円 |
|---|---|
| 施工日数 | - |
| 施工面積 | - |
| 採用メーカー・シリーズ | リクシル その他 |
洗面所
| リフォーム費用 | 20〜50万円 |
|---|---|
| 施工日数 | - |
| 施工面積 | - |
| 採用メーカー・シリーズ | リクシル その他 |
リビング
| リフォーム費用 | 50〜100万円 |
|---|---|
| 施工日数 | - |
| 施工面積 | - |
| 採用メーカー・シリーズ | - |
洋室
| リフォーム費用 | 20〜50万円 |
|---|---|
| 施工日数 | - |
| 施工面積 | - |
| 採用メーカー・シリーズ | - |
玄関
| リフォーム費用 | 50〜100万円 |
|---|---|
| 施工日数 | - |
| 施工面積 | - |
| 採用メーカー・シリーズ | - |
施工したリフォーム会社の詳細
LIXILリフォームショップ大創住建
2023年 ユーザー満足優良会社 受賞
愛媛県松山市枝松1−9−36
施工事例 39件
得意なリフォーム
- 全面改装工事
- 内装・水回り・外装リフォーム
- 小工事・修繕
おすすめポイント
- 1
地域に根ざした地元のリフォーム専門店!
- 2
ご相談から完成まで、自社一貫の責任施工!
- 3
「LIXILリフォームショップ顧客満足度調査」愛媛県№1の実績
「LIXILリフォームショップ大創住建」は愛媛県松山市、伊予市、松前町、砥部町、東温市でリフォーム・不動産業を営む地域密着の会社です。 地元で生まれ、地元に愛される会社として、お客様にご満足頂けるリフォーム工事を提供し続けています。

