薪ストーブの温かな空気を部屋全体で味わうことのできる空間
リフォーム事例の詳細
お客様からの要望
昔の家だということもあって、とにかく室内の冬の寒さが辛く、結露やカビにも悩まされていました。
リフォーム会社からのコメント
施工会社 : セイダイリフォームクリエイト株式会社
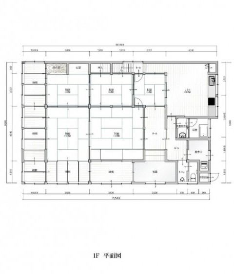
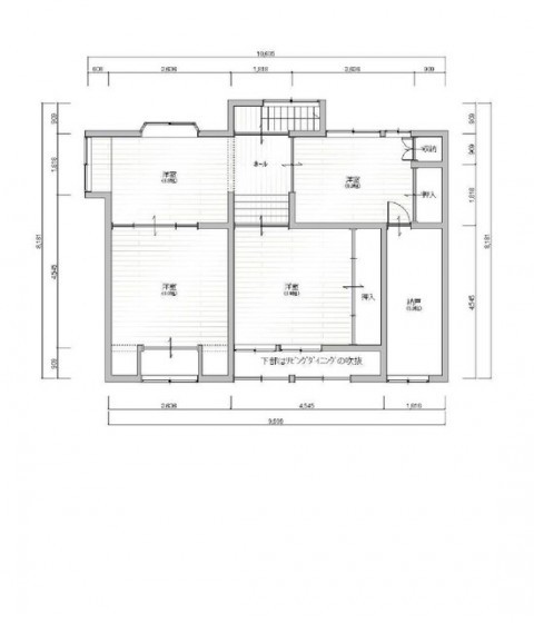
古民家風の天井の高い居間を更に天井を取り払って、大きな吹抜け空間とし、憧れの薪ストーブと共に暮らすリビングを中心とした断熱リフォーム。
リビングから眺めるウッドデッキは、カフェスペースとして利用され、冬は薪ストックヤードに変わります。分離していた水廻りも、キッチンを中心に使いやすい動線に集約され、奥様ご希望の家事ラク動線を実現しました。
このリフォーム事例の詳細
家全体・リノベーション
| リフォーム費用 | 1000万円以上 |
|---|---|
| 施工日数 | - |
| 施工面積 | - |
| 採用メーカー・シリーズ | - |
洗面所
| リフォーム費用 | 20〜50万円 |
|---|---|
| 施工日数 | - |
| 施工面積 | - |
| 採用メーカー・シリーズ | - |
外壁塗装・外壁
色調:黒系
| リフォーム費用 | 100〜150万円 |
|---|---|
| 施工日数 | - |
| 施工面積 | - |
| 採用メーカー・シリーズ | - |
リビング
テイスト:和モダン
| リフォーム費用 | 50〜100万円 |
|---|---|
| 施工日数 | - |
| 施工面積 | - |
| 採用メーカー・シリーズ | - |
ダイニング
| リフォーム費用 | 50〜100万円 |
|---|---|
| 施工日数 | - |
| 施工面積 | - |
| 採用メーカー・シリーズ | - |
洋室
色調:ブラウン系
| リフォーム費用 | 50〜100万円 |
|---|---|
| 施工日数 | - |
| 施工面積 | - |
| 採用メーカー・シリーズ | - |
ウッドデッキ
テイスト:和モダン
| リフォーム費用 | 20〜50万円 |
|---|---|
| 施工日数 | - |
| 施工面積 | - |
| 採用メーカー・シリーズ | - |
玄関
| リフォーム費用 | 50〜100万円 |
|---|---|
| 施工日数 | - |
| 施工面積 | - |
| 採用メーカー・シリーズ | - |
施工したリフォーム会社の詳細
セイダイリフォームクリエイト株式会社
石川県金沢市鞍月3丁目83番地
おすすめポイント
- 1
暖かさを徹底・寒暖差が少ない室内環境
- 2
女性プランならーだからこそできるプランニング
- 3
優れたプロフェッショナルがアドバイス
セイダイリフォームクリエイトは、身体にやさしい健康な暮らし、 「ベストな暮らし」のデザイン提案、すべて数値で示す安心な品質を大切にしているリフォーム会社です。最新の技術も用いて、ご家族にとって最適な空間をお届けいたします。
この会社の他のリフォーム事例
事例は現在準備中です。
