
スケルトンリフォームのビフォーアフター事例12選!費用や施工日数もご紹介
更新日:
スケルトンリフォームでは、床や壁、天井を撤去して住宅を大胆にリフォームします。内装も外装も自由に変更できる部分が多いため、こだわりや希望を反映させ、リフォーム前後でまったく異なる印象の住宅に変身させられます。 本記事では、スケルトンリフォームのメリット・デメリットについて詳しく解説し、ビフォーアフター事例を12選ご紹介します。
目次
スケルトンリフォームのメリット

スケルトンリフォームには、次のメリットがあります。
● 間取りを大きく変更できる
● 家の雰囲気を刷新できる
● 耐震性や断熱性を向上させられる
● 配管を一新できる
● 劣化しやすい箇所を把握できる
間取りを大きく変更できる
スケルトンリフォームは、部屋の間取りを大きく変更できます。
スケルトンリフォームでは、床や壁などを撤去していったん骨組みだけの状態にします。
「寝室と子ども部屋をつなげて大きな部屋にしたい」「キッチンをリビングの真ん中に移動させたい」など、部屋の増減や水まわりの位置変更も可能です。
自由に間取りを変えられるので、生活スタイルに合わせた住みやすい家にリフォームできます。
家の雰囲気を刷新できる
スケルトンリフォームでは、基本的に骨組み以外を全て工事します。
そのため、築年数の古い家でも雰囲気を刷新できます。
家のデザインにも流行りがあるため、中古住宅の中には古っぽさを感じる物件もあります。
しかしスケルトンリフォームなら、外装も内装も好きなように変更できるので、好みや近年の流行を反映したデザインに刷新が可能です。
新築のように真新しい雰囲気にできるため、デザインにこだわりたい方におすすめです。
耐震性や断熱性を向上させられる
スケルトンリフォームでは床下や屋根裏の工事も実施できます。
そのため、基礎を補強して耐震性を高めたり、断熱材を入れて断熱性を高めたりできます。
築年数の古い家は、何十年も前の技術での地震対策しかされていない場合や、隙間風により暖房が効きにくい場合などがあります。
安全性や快適性、また省エネ性を考えると、耐震性と断熱性はなるべく重視したいものです。
スケルトンリフォームなら最新の技術を反映して構造部分を補強・補修できるので、耐震性・断熱性を含め、家の機能性を大きく向上させられます。
配管を一新できる
スケルトンリフォームでは、劣化に気づきにくい配管の修理や交換も可能です。
配管は目に見えない部分のため、劣化していても補修の必要性になかなか気付けません。
しかし、スケルトンリフォームでは床を剥がして配管の状態をよく確認できるので、水漏れや詰まりなどのトラブルに発展する前に配管を一新できます。
配管を一新することで建物の寿命を長くでき、快適に住み続けられるようになるでしょう。
劣化しやすい箇所を把握できる
スケルトンリフォームでは通常見えない構造部分の状態をはっきり確認できるため、住宅の中で劣化しやすい箇所の把握も可能です。
他の部分と比べて傷みの激しい部分があれば、カビやサビなどが発生しやすく、メンテナンスに注意が必要な部分だと推測できます。
将来補修が必要になりそうな部分をあらかじめ把握しておくことで、適切な時期にメンテナンスができ、住宅の寿命を伸ばせるでしょう。
スケルトンリフォームが得意な 施工会社を探したい!無料リフォーム会社一括見積もり依頼
スケルトンリフォームのデメリット

スケルトンリフォームでは、次のデメリットに注意が必要です。
● 工事の規模が大きく仮住まいが必要になる
● 費用が膨らみやすい
● 工事を始めるまで補強・補修工事の内容がはっきりしない
● 売却時の価値が落ちる恐れがある
工事の規模が大きく仮住まいが必要になる
スケルトンリフォームは大規模な工事のため、仮住まいが必要です。
(現在居住している住宅をスケルトンリフォームする場合)
仮住まい探しや引越し作業などがあるため、部分的なリフォームよりも工事前の負担が大きくなります。
工事のスケジュールが決まり次第、早めに準備をスタートさせましょう。
施工業者によっては賃貸物件や引越し業者の紹介をしてくれることもあるので、見積もりの際に提携している業者やサービスがあるか質問してください。
費用が膨らみやすい
スケルトンリフォームでは内装も外装もほぼ自由に変更できます。
しかし、予算を意識しながらプランニングしなければ、どんどん費用が膨らんでいってしまいます。
希望をすべて反映した結果、新築よりも高くなってしまうこともあるでしょう。
想定外に高額な費用を避けるには、予算を業者と共有してからプランニングをすること、希望に優先順位をつけておくことが大切です。
予算をオーバーしそうなときにグレードを落としてもよい部分、反対にどうしてもこだわりたい部分を明確にしておき、工費が予算に収まるよう工夫しましょう。
工事を始めるまで補強・補修工事の内容がはっきりしない
構造部分の補強や補修の必要性や具体的な内容は、実際にスケルトン状態してみるまで明確になりません。
工事が始まってから初めて補修工事の必要性が判明することもあります。
そのため、住宅の状態によっては見積もりよりも工事費用が大きくなってしまうことがあります。
プランニング時よりも必要な工事や費用が増えることを想定し、予算には余裕を持たせておきましょう。
売却時の価値が落ちる恐れがある
スケルトンリフォームで自分の好みや都合を反映しすぎると、将来売却するときに住宅の価値が低くなる恐れがあります。
スケルトンリフォームは自由に住まいをプランニングできますが、個性的なデザインや特殊な間取りにしてしまうと、売却時に買い手がなかなか見つからないかもしれません。
買い手がいないと価値が落ちてしまいます。
将来的に売却を考えている場合は、自分の好みだけでなく大勢の人に受け入れられやすいかどうかも考慮しましょう。
スケルトンリフォームが得意な 施工会社を探したい!無料リフォーム会社一括見積もり依頼
マンションスケルトンリフォームのビフォーアフター4選

ここからは、マンションのスケルトンリフォームのビフォーアフター事例を4つご紹介します。
家事動線に配慮した快適な住まい
【施工前】

【施工後】

建物構造 | - |
|---|---|
築年数 | 35年 |
施工面積 | 39㎡ |
施工日数 | 60日 |
リフォーム費用 | 約607万円 |
「実家のマンションの一室を家族で住みやすいように改築したい」というご希望をお客様からいただき、スケルトンリフォームを実施しました。
共働きのご家庭で特に朝は忙しいとお悩みだったため、少しでも負担が減るよう、家事動線を考えて間取りを変更しています。
色合いはシックな色調で統一し、大人っぽく洗練された雰囲気の家に仕上げました。
>> この事例の詳細を見る
築40年の中古マンションをスケルトンリフォームで今風に
【施工前】

【施工後】

建物構造 | RC造(鉄筋コンクリート造) |
|---|---|
築年数 | 40年 |
施工面積 | 100㎡ |
施工日数 | 50日 |
リフォーム費用 | 約800万円 |
築40年と少し古めのマンションをスケルトンリフォームした事例です。
費用を抑えるため、小さく間仕切りをせず各個室が大きめのプランを採用しました。
ワンポイントクロスやダウンライト、ピクチャーレールなどを使い、今風でおしゃれな雰囲気の家に仕上げています。
広々とした100㎡のスケルトンリフォーム
【施工前】

【施工後】

建物構造 | RC造(鉄筋コンクリート造) |
|---|---|
築年数 | 26年 |
施工面積 | 100㎡ |
施工日数 | 60日 |
リフォーム費用 | 約1,476万円 |
お子様が独立して必要な部屋が少なくなったのをきっかけにリフォームをご依頼いただきました。
100㎡の広々とした空間を活かして趣味の部屋もつくり、ご夫婦でゆったり過ごせる住まいへと変身させました。
>> この事例の詳細を見る
子どもの成長に配慮した家へとリフォーム
【施工前】

【施工後】

建物構造 | SRC造(鉄筋鉄骨コンクリート造) |
|---|---|
築年数 | 32年 |
施工面積 | 79.6㎡ |
施工日数 | 60日 |
リフォーム費用 | 約1,700万円 |
安心して子育てができ、かつ、お子様が成長しても生活しやすい住まいにしたいとお客様からご希望をいただいてリフォームした事例です。
健康や環境に配慮した素材を使用しつつ、可変性のある間取りにすることで、安心してお子様の成長を見守れる住まいをつくり上げました。
>> この事例の詳細を見る
スケルトンリフォームが得意な 施工会社を探したい!無料リフォーム会社一括見積もり依頼
戸建てスケルトンリフォームのビフォーアフター8選

ここでは、戸建てのスケルトンリフォームのビフォーアフター事例を8つご紹介します。
人と人とのすれ違い防止を意識した動線
【施工前】

【施工後】

建物構造 | 木造軸組み工法 |
|---|---|
築年数 | - |
施工面積 | 41㎡ |
施工日数 | 21日 |
リフォーム費用 | 約350万円 |
「誰かがドアを開けた先に誰かがいて、ぶつかってしまうことが多い」とのお悩みを解消するため、スケルトンリフォームにより間取りを変更しました。
人と人がすれ違わない動線を意識し、扉は折れ戸・引き戸に変更しています。
>> この事例の詳細を見る
88歳から6歳まで家族が安心して暮らせる住まいに
【施工前】

【施工後】

建物構造 | その他 |
|---|---|
築年数 | 40年 |
施工面積 | - |
施工日数 | 90日 |
リフォーム費用 | 約820万円 |
上は88歳から下は6歳までのご家族が同居されているので、幅広い年齢層が快適に暮らせるように間取りを変更しました。
築40年で老朽化も進んでいたため、安全性を考慮し、防災瓦への葺き替えなど耐震補強工事も18か所実施しました。
>> この事例の詳細を見る
子どもの成長に合わせ広く感じる間取りへ
【施工前】

【施工後】

建物構造 | 鉄骨ユニット工法 |
|---|---|
築年数 | 30年 |
施工面積 | 80㎡ |
施工日数 | 75日 |
リフォーム費用 | 約849万円 |
お子様の成長を考え、間取りや収納スペースの変更をご希望されていたお客様のスケルトンリフォーム事例です。
水まわりの位置を工夫してリビングを広くした他、吹き抜けやスケルトン階段により開放的な住まいを実現しました。
収納スペースは3階の床を伸ばすことで収納力をアップさせています。
>> この事例の詳細を見る
動線を考慮して住みにくさを解消
【施工前】

【施工後】

建物構造 | 木造軸組み工法 |
|---|---|
築年数 | 35年 |
施工面積 | 64㎡ |
施工日数 | 75日 |
リフォーム費用 | 約1,260万円 |
耐震性や快適性にお悩みのお客様のご自宅をスケルトンリフォームした事例です。
階段の急こう配や間取りを改善することで住みやすさを向上しました。
間取りは家事の時短を考えた動線に基づいています。
>> この事例の詳細を見る
築52年の中古住宅を快適な住まいに
【施工前】

【施工後】

建物構造 | 木造軸組み工法 |
|---|---|
築年数 | 52年 |
施工面積 | 110㎡ |
施工日数 | 120日 |
リフォーム費用 | 約1,420万円 |
廃屋寸前だった築52年の家をスケルトンリフォームした事例です。
ダイニングキッチンとリビングの間仕切りを撤去し、対面式キッチンを導入することで、明るく開放的なLDKを実現。
補強や断熱工事も行い、暖かく丈夫で長持ちする家になりました。
>> この事例の詳細を見る
人が集まってもゆったりパーティができる家
【施工前】

【施工後】

建物構造 | - |
|---|---|
築年数 | 35年 |
施工面積 | 77㎡ |
施工日数 | 90日 |
リフォーム費用 | 約1,560万円 |
ご自宅に大勢の人が集まることの多いお客様から、「人が集まっても狭くない家にしたい」とのご依頼をいただきました。
広いスペースを確保するため、壁や柱を一部撤去して開放的なLDKに変更しています。
LDKの中央にキッチンを移すことで、明るい空間でお料理していただけるようにしました。
>> この事例の詳細を見る
大人数が集まれるオープンリビングを実現
【施工前】

【施工後】

建物構造 | 木造軸組み工法 |
|---|---|
築年数 | 19年 |
施工面積 | 184㎡ |
施工日数 | 150日 |
リフォーム費用 | 約3,300万円 |
2世帯で暮らすお客様から、「キッチンがリビング・ダイニングから離れていて会話がしにくい」とご相談をいただきました。
大人数が集まったときに楽しく会話できるよう、ウッドデッキを新設し、さらに開口部分を幅いっぱい開ける全開口サッシを取り付けることで、オープンリビングを実現しました。
>> この事例の詳細を見る
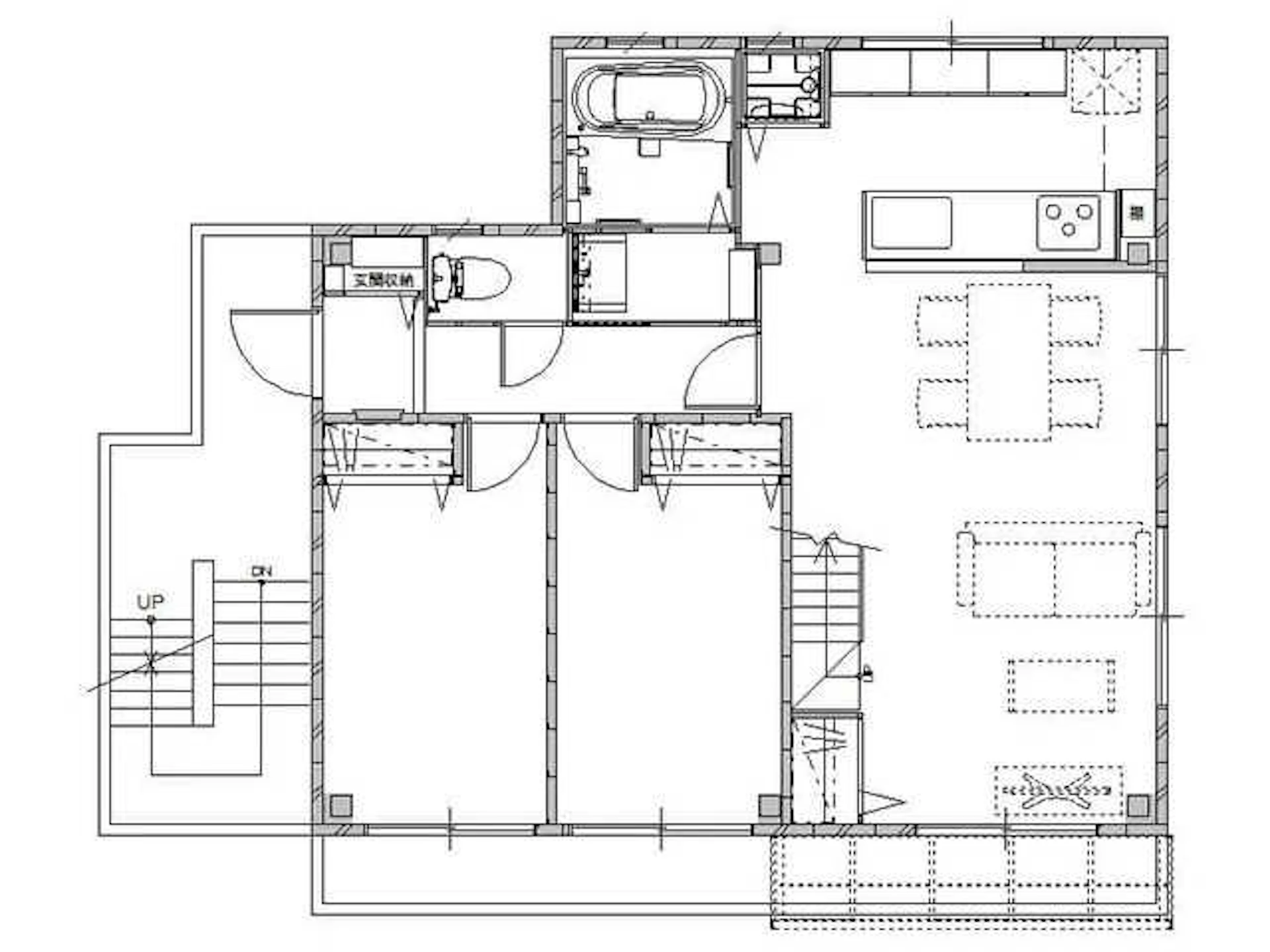
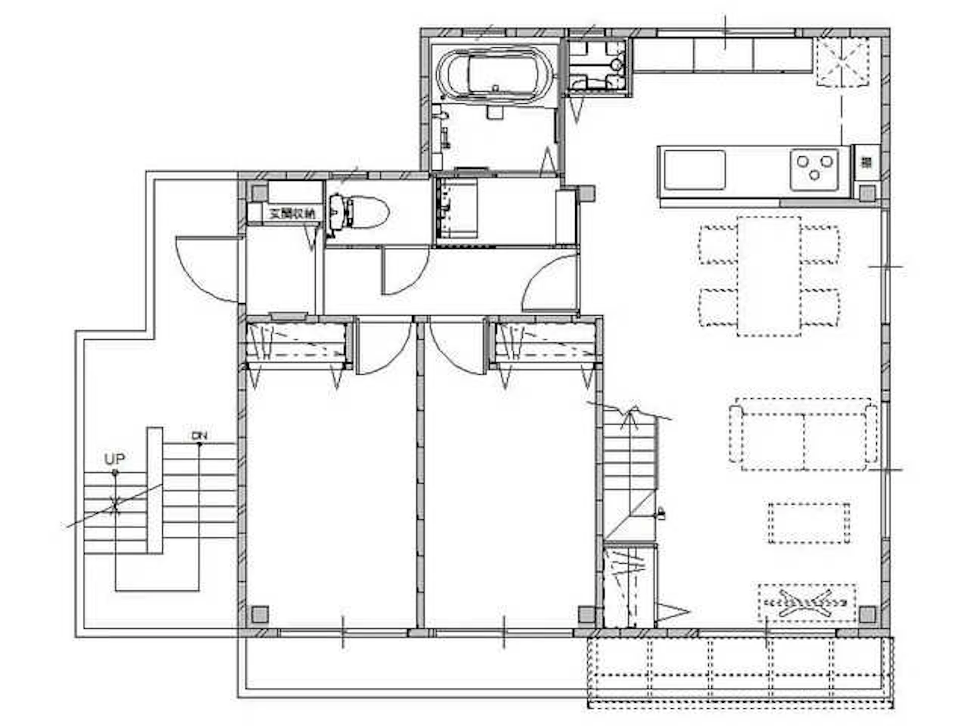
水まわりの間取りと設備を大きく変更
【施工前】

【施工後】

建物構造 | その他 |
|---|---|
築年数 | - |
施工面積 | - |
施工日数 | 15日 |
リフォーム費用 | - |
水まわりのリフォームと間取り変更を主に希望されていたお客様のご自宅を施工した事例です。
土間だった箇所にキッチンを移し、浴室を拡大することで、それぞれが広々として使いやすい住まいになりました。
>> この事例の詳細を見る
スケルトンリフォームが得意な 施工会社を探したい!無料リフォーム会社一括見積もり依頼
スケルトンリフォームのビフォーとアフターは大きく変えられる

スケルトンリフォームは骨組みだけを残して実施する大規模な工事で、新築のように大きくデザインや間取りを変更できます。
自由にプランニングできる分、予算を考慮しないと費用が膨らみやすいので、業者との細かい打ち合わせを大切にしましょう。
今回ご紹介した事例の費用や施工日数などを参考に、ご自宅のスケルトンリフォームの計画を立ててください。
スケルトンリフォームが得意な 施工会社を探したい!無料リフォーム会社一括見積もり依頼




.jpg?w=1920&fit=clip&fm=webp)









